







Plan Description
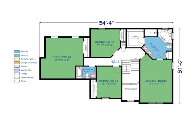
This model presents itself beautifully. The first impression of this home is breathtaking with its double peaks, window heads, front porch with stone facade and side loaded 2 car garage. Upon entering, you are greeted with an open foyer and beautiful railing that encases the split stairway. On either side of the grand foyer you will find the living room and dining room. This home has a unique free flowing floor plan. As you pass the stairway, you will enter the family room with optional fireplace. The kitchen is nestled into the right side of the home and has an island. The dinette area has a walk out bay for you to enjoy the outdoors. There is a laundry area located just off of the kitchen for your convenience. There is also an informal side foyer from the garage area. As you walk up the split stairs that are surrounded by railing, you will come to the second floor where you will find the large master bedroom suite. The master bath has a whirlpool tub, shower, double sink and a walk in closet. There are a total of 4 bedrooms and 2 ½ baths. Stafford 4th bedroom includes steeper roof pitch on garage and added square foot to garage.
Plan Info
StyleTwo-Story Homes
Bedrooms4 Bed
Bathrooms2.5 Bath
Square Footage2443sq ft
$300,500

